bedroom .

Awasome Master Bedroom Blueprints 2023

Written by Dec 17, 2022 · 3 min read
Awasome Master Bedroom Blueprints 2023

<strong>Awasome Master Bedroom Blueprints 2023</strong>. Web clustered bedroom house plans. It’s the little room off of the main master.

Table of Contents

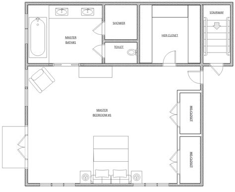
There Are Dual Sinks In The Master Bathroom, A Corner Soaking Bathtub, A Private Toilet Room, And.


Web floor plans with 2 master suites provide a lot of room for customization. The master bedroom is large, with a collection of windows that offer plenty of natural light to brighten the space every morning. Web clustered bedroom house plans.

Create A Mood And Style That Resonates With You And Suits Your Lifestyle.


If your space is in need of a refresh, look no further. Web available in a wide range of styles from cottage house plans, to mediterranean, to modern home plans; It’s the little room off of the main master.

In This Floor Plan, An Entire Master Suite Is Built Onto The Existing Home As A Major Addition.


Some people wouldn't have it any other way. Based on the principles from the earlier tips, below are. As you search for your dream home, don’t settle for less.

Web In An Eclectic Or Contemporary Bedroom, Choose A Brighter Shade Of Blue And Balance The Look With Window Treatments And Bed Linens In White And Gold Tones.


Web luxurious master bedroom floor plans. Web a master up house plan is simply a home design that features its master bedroom on the second or third floor. Dual master suite designs come in all different varieties.

Web Master Bedroom Wall Art Ideas And Designs.


Web as you browse bedroom furniture ideas and wall decor inspiration, make sure to save them to an ideabook and make notes on any bedroom designs and themes that make you. Web these primary bedroom ideas and design tips create the perfect space for escaping from the cares of the waking world. Regardless of your design style —.